Mmmm..... cookies...

Afdeling

Kløvermarken
438-0

Kløvermarken 74, 76, 80, 92, 96, 102

Boliginfo

Adresser

Kløvermarken 106 - 140, 66 - 102,
6360 Tinglev

Boligtype

Antal boliger

11

Energimærke

D

Andet

Altan: Nej
Elevator: Nej
Husdyr tilladt: Ja

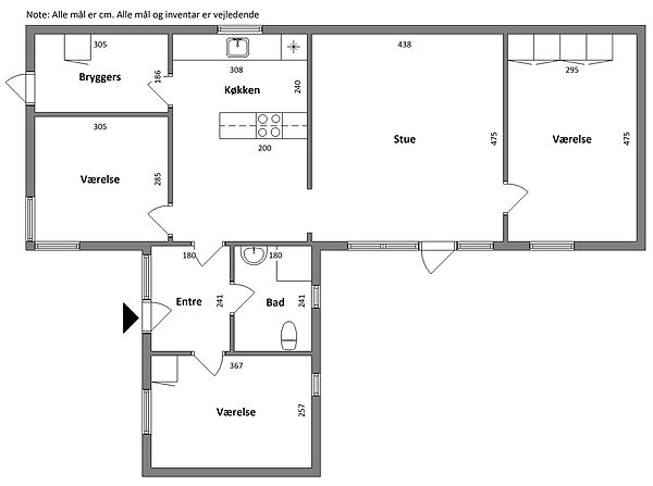
Værelser

4

Størrelser

95-98 m2

Husleje

6355-6946 kr.

Indskud

15900-17100 kr

Ventetid

6 mdr. - 2 år

Skriv dig op her!